Обяви 0 За нас Контакти
Продава 2-СТАЕН
град Варна, Възраждане 3
пчелина
86 000 €
168 201.38 лв.

(1 246 €, 2 436.96 лв./m2)
Не се начислява ДДС
История на цената
Коригирана в 12:11 на 15 май, 2026 год.
Обявата е посетена 603 пъти.
Площ:
69 m2
Етаж:
Партер от 5
Газ:
НЕ
ТEЦ:
НЕ
Строителство:
Тухла, Ще бъде въведен в експлоатация 2027 г.

Описание на имота:


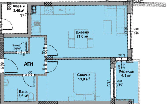
HOLDING GROUP real estate представя на Вашето внимание двустаен апартамент с чиста жилищна площ 56,16 кв.м. в м-ст Пчелина. Ситуиран е на партерен етаж и се състои от коридор, дневен тракт с площ от 21 кв.м., спалня с площ от 13 кв.м., веранда за двете стаи, баня с тоалетна и килер. Прилежащо избено помещение. Възможност за закупуване на паркомясто. Апартаментите в сградата са проектирани с просторни и функционални помещения, със строго изчистена геометрия, което гарантира оптимално използване на пространството. Сградата е преди акт 14, намира се над бул. 3-ти Март, в непосредствена близост на кв. Възраждане 3. Налични са и други двустайни и тристайни апартаменти. Лесен и бърз достъп до главни пътни артерии, магазини, спирки на градски транспорт детски градини и др. За въпроси и огледи, моля да се обадите на посоченият телефонен номер и да цитирате кода на офертата. Снимките са от готовата сграда в съседство на същият инвеститор.

Код на офертата 9491
Особености
Тухла
Асансьор
Контрол на достъпа
За контакт:
0879401333
Брокер:
Геновева Тушева
+359879401333
Още оферти от брокера: Продава | Дава под наем | Купува | Наема
Агенция:
ХОЛДИНГ ГРУП
0879 308 333
ХОЛДИНГ ГРУП  logo
Медал за прослужено време
В imot.bg от 2023 г.
holdinggroup.imot.bg
Адрес:
област Варна, гр. Варна, УЛ.ДЕБЪР 58
ИЗПРАТИ ЗАПИТВАНЕ
ИЗПРАТИ ЗАПИТВАНЕТО

Продава 2-СТАЕН
град Варна, Възраждане 3
пчелина
Обява: 1b177148805886686

86 000 €
168 201.38 лв.
История на цената
(1 246 €, 2 436.96 лв./m2)

Не се начислява ДДС
ЗАПАЗИ ОБЯВАТА

Местоположение: град Варна, Възраждане 3, пчелина

Допълнителни данни за имотите в района и сравнение с други райони

Покажи

Период

и 5 месеца

* Средните цени са определени чрез медианна стойност